HOME
PROFILE
THEATRICAL CREDITS
+ GALLERY
Contact
HOME
PROFILE
THEATRICAL CREDITS
+ GALLERY
Contact
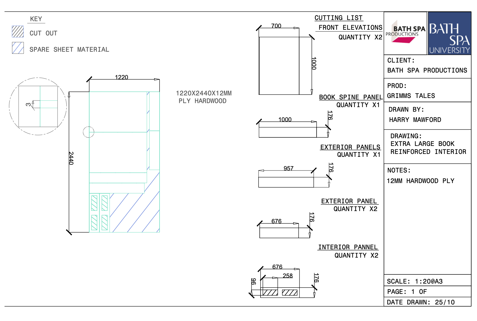
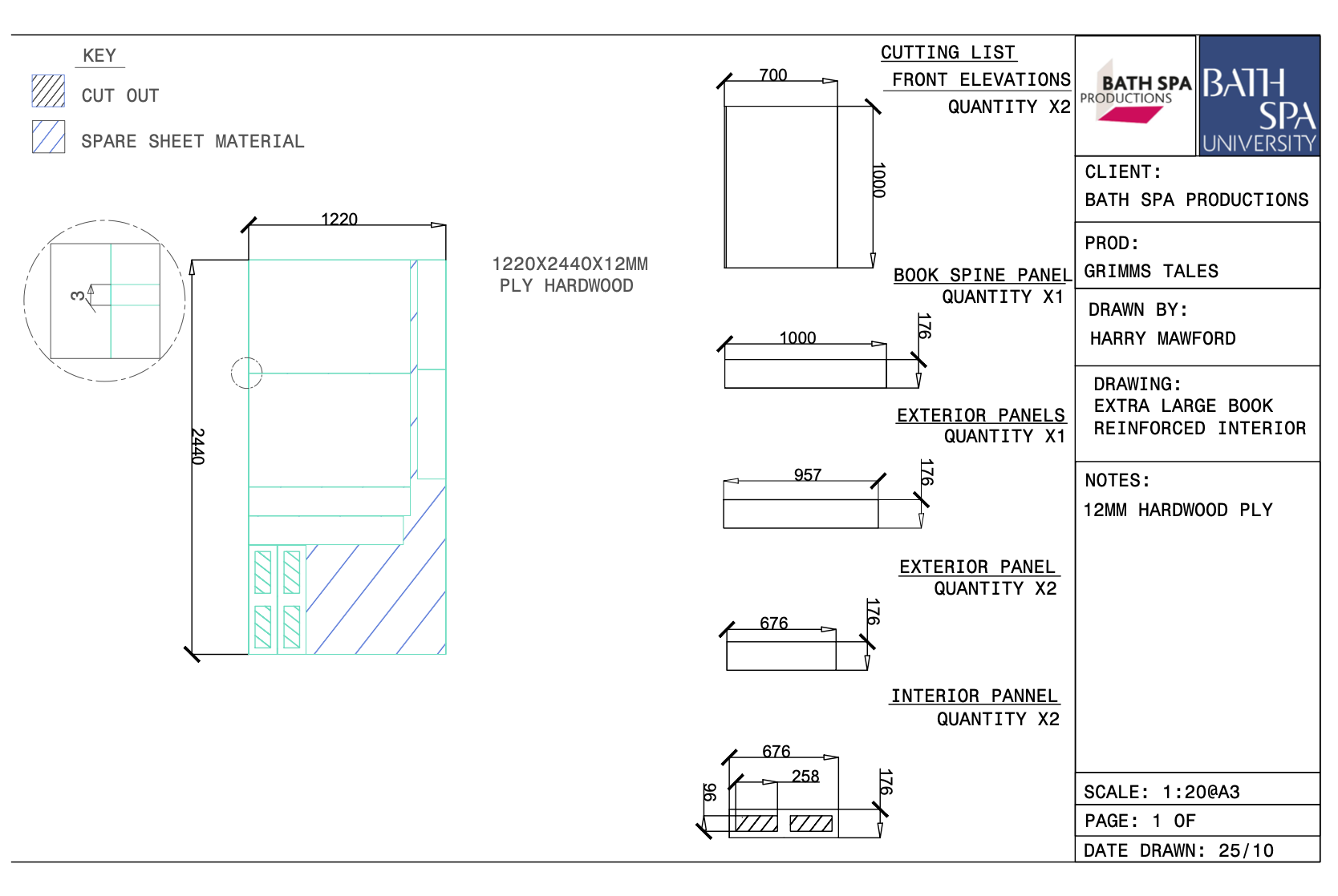
COLLECTED GRIMM'S TALES TECHNICAL DRAWINGS
AUTOCAD EVELATIONS
EXTRA LARGE BOOK - REINFORCED INTERIOR
3D CAD ELEVATIONS
GRIMM'S CLOCK
HOME
PAPERWORK
↑
Back to Top